SE23.com - The Official Forum for Forest Hill & Honor Oak, London SE23
Online since 2002

Home | SE23 Topics | Wider Topics | Offered/Wanted/Lost/Found | About SE23.com | Advertising | Contact | |
Canvas & Cream  Armstrong & Co Solicitors



Post Reply  Post Topic 
Pages (6): « First < Previous 2 3 4 5 [6] Last »
Forest Hill 20 MPH Zone
Author Message
NewForester


Posts: 379
Joined: Feb 2008
Post: #101
29-10-2009 01:56 PM

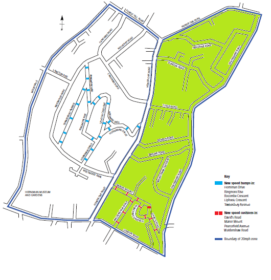
Lewisham only saw fit to consult with the people on roads which were proposed for 'bumping', so if you live on London ROad or Honor Oak Road you will not have received anything.

You can find the proposal document on Lewisham''s website. The results pamphlet is not there yet, but the zone which will be implemented is coloured green on the image below

   

Find all posts by this user Quote this message in a reply
Londondrz


Posts: 1,538
Joined: Apr 2006
Post: #102
27-01-2010 02:27 PM

Well Conway started putting humps in this morning with little notice and as a result I think there will be a few car owners who now have dents and scrapes on their vehicles.

One of the Conway crew also managed to swear at my wife causing her some distress.

Way to go Conway.

Find all posts by this user Quote this message in a reply
Snazy


Posts: 1,518
Joined: Jan 2008
Post: #103
29-01-2010 10:57 AM

I finally managed to get a look at what they were planning locally to me. Seems logical. Cant see it changing the average speed on my road but welcome the other changes.

What happened with the Conway people? What did they say to your wife?

Find all posts by this user Quote this message in a reply
Londondrz


Posts: 1,538
Joined: Apr 2006
Post: #104
29-01-2010 12:02 PM

Became abusive when she tried to park shortly after leaving the house as she had forgotten to take my daughters gloves. Was told she "couldnt F*****g park there. Very intimidating which upset her until I hove into view then they scattered. Council has been very appologetic to their credit and expecting a letter from Conway.

The humps do seem (to my very unscientific eye) to have slowed traffic and not as many cars seem to be using Waldenshaw Road as usual.

Find all posts by this user Quote this message in a reply
Snazy


Posts: 1,518
Joined: Jan 2008
Post: #105
29-01-2010 02:03 PM

That is disgusting, I would accept nothing less than a written apology for that. I hope she is not too upset now.

Just noticed the works have started on Church Rise.
The speed table been inserted down by around No3.

And something I was not aware was happening, it appears the entrance to Church Rise, from South Road, coming from the Westbourne end, is having its angle tightened, and the mouth of the road narrowed somewhat.
As well as the islands (which were mentioned)

Will be interested to see what that causes.

Find all posts by this user Quote this message in a reply
Londondrz


Posts: 1,538
Joined: Apr 2006
Post: #106
02-02-2010 10:10 AM

VERY pleased to see both police and PCO's out in force this morning at the corner of Waldenshaw Road and Manour Mount checking on both speeding and driving the wrong way.

Wished them good luck as I passed.

Find all posts by this user Quote this message in a reply
XFH


Posts: 6
Joined: Dec 2010
Post: #107
01-01-2011 12:16 PM

Can anyone tell me why the traffic calming measures are being put in place. I used to live on Kilmorie Road. I was planning on moving out of London before the traffic calming measures within the area bounded by Stanstead Road, Perry Vale, Woolston Road and Catford Hill were muted so it wasn't a major effect on me. I know that the council were getting money from Europe to action the changes, but having lived on the road for 20 years, I had not heard of any accidents on the enclosed streets other than Sunderland Road, Chuch Rise and Westbourne Road (which had already been humped).

Surely that area would heve been better served by rerouting the roads to stop them being used as rat runs. If people do not get an advantage from leaving the main roads on their commutes would reduce the traffic on the more residential roads. Forcing people to park on their yards rather than the street would meen that pedestrians seeing moving cars and drivers seeing pedestrians would be improved considerably. Just taking parked cars off the roads would make them safer.

The introduction of humps and crossing safety bollard areas on Woolstone Road and the introduction of the islands on Perry Vale seemed to increase accidents rather than reduce them.

Does anyone know how the measures have affected Lewishams average speed through the borough? I vaguely recall around the late 90's they were aiming for an average speed of 9mph according to the Mercury.

Find all posts by this user Quote this message in a reply
Pages (6): « First < Previous 2 3 4 5 [6] Last »

Friends of Blythe Hill Fields


Possibly Related Topics ...
Topic: Author Replies: Views: Last Post
  Pedestrian zone Forest Hill area wbrayn 2 6,571 15-11-2020 08:01 AM
Last Post: michael
  Consultation on Controlled Parking Zone in Forest Hill P1971 127 176,908 14-10-2016 10:22 PM
Last Post: michael
  Why is HOP and Forest Hill in zone 3 and not zone 2 Redalways 3 11,094 13-11-2011 03:31 PM
Last Post: brian